Downton Flat for Rent
English
Italiano
Français
349,000 €

Downton Flat for Rent

2 bedroom apartment for sale • Torino (Centro/ Giardini Reali/ Repubblica) - Via Stampatori, 4
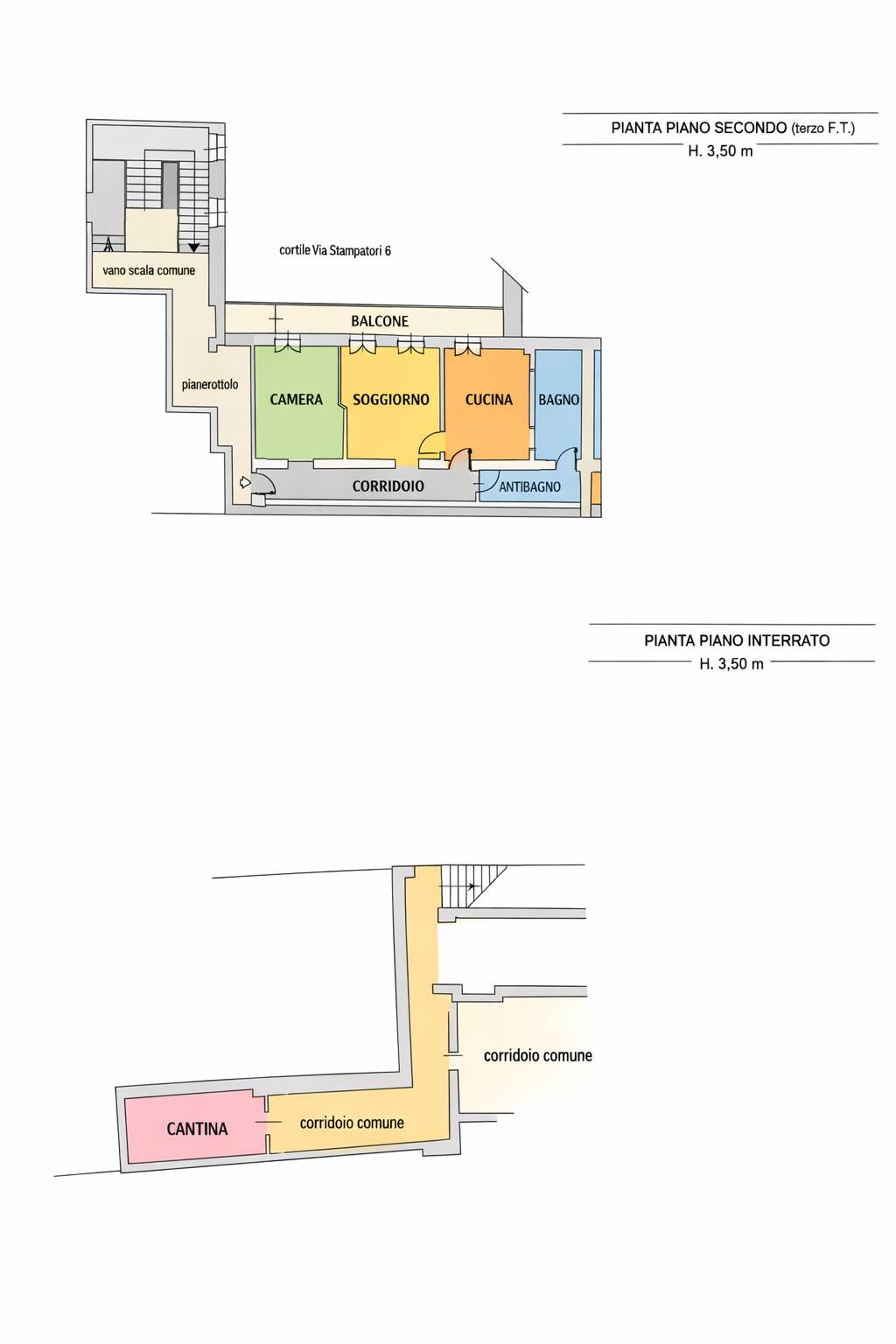
In the very heart of Turin, at Via Stampatori 4, corner of Via Barbaroux, within the elegant and historic 17th-century Palazzo Scaglia di Verrua, we offer for sale a renovated second-floor apartment overlooking a quiet internal courtyard.

The property comprises an entrance hall, living room, bed room, eat-in kitchen, bathroom, balcony, and a cellar located in the basement. The apartment features independent heating and a security entrance door, ensuring comfort and peace of mind.


Primal Features
Code
V000367
City
Torino (Centro/ Giardini Reali/ Repubblica)
Category
2 bedroom apartment
Price
349,000 €
Expanses
1,500 € / year
Locals
3
Bedrooms
1
Bathrooms
1
Sqm
87
Balconies
1
Floor
2
Energetic class
E
Property Conditions
Perfect Conditions
Rank
Elegant
Position
Center
Orientation
South East
Free Sides
1
Garden
Cortile
Furniture
Possibility
Type living
Living room
Kitchen
Eat-In Kitchen
Heating
Independent
Heating Type
Boiler
Type of heating system
Radiator heating
Energy source
Natural Gas Heating
Hot Water
Independent
Cooling
Split
Fixtures
Wood
Doors
Good
Blind
Wood Blinds
Floors Living Room
Parquet
Floors Bedrooms
Ceramic
Floors Kitchen
Ceramic
Floors Bathroom
Ceramic
Access for disabled
No
Disabled internal access
Not accessible

Accessories: Air Conditioning, Cupboard, Electric gate, Double Glazing, Satellite System, Armored door

Map
Via Stampatori 4, Torino (TO)
Share on
Cookie preference