Elegante appartamento nel verde con ampio terrazzo, e giardino privato.
Italiano
English
Français
760.000 €

Elegante appartamento nel verde con ampio terrazzo, e giardino privato.

Porzione Villa in vendita • Torino - Strada traforo di pino, 39
Nella prima precollina di Sassi, in una recente palazzina immersa nel verde, proponiamo in vendita un elegante appartamento di 280 m² con giardino privato, in un contesto panoramico, soleggiato e tranquillo.
L’immobile, libero su quattro lati, dispone di un ampio terrazzo vivibile, area esterna, cantina e spazioso box doppio pertinenziale.
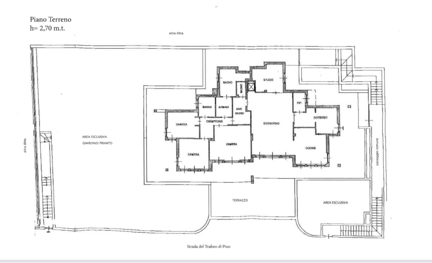
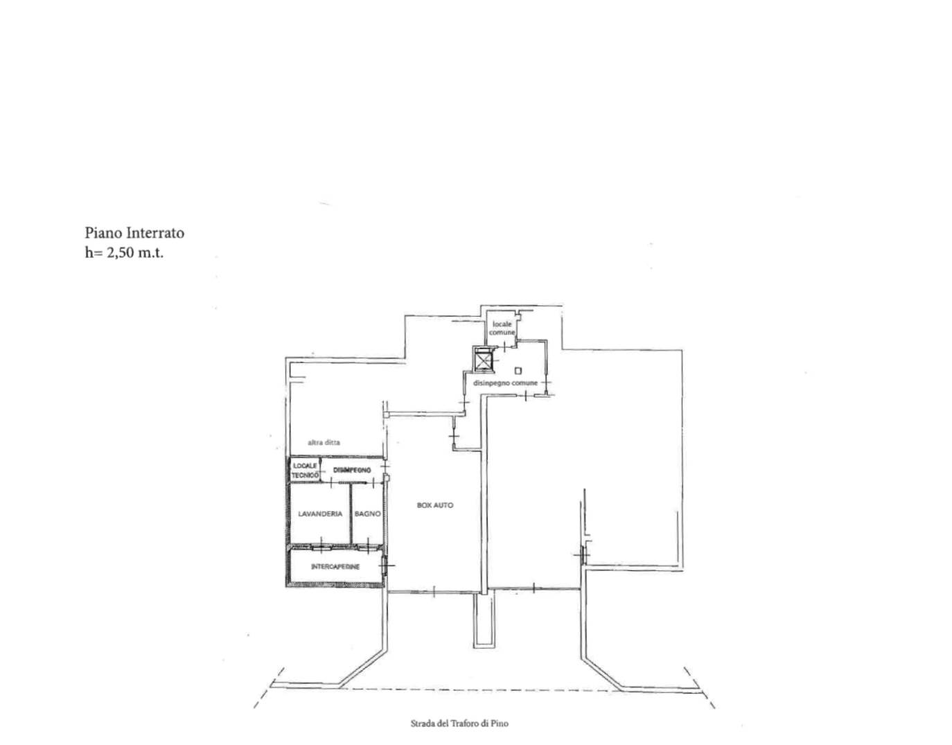
L’abitazione si sviluppa su un unico livello principale, oltre al piano seminterrato dove si trovano la lavanderia e un grande box auto.

Al piano giardino, si accede da :
Ingresso su disimpegno
Ampio soggiorno con accesso diretto al terrazzo panoramico dotato di pergolato mobile, salotto esterno, barbecue, zona relax e zona pranzo
Cucina moderna plurifinestrata con affaccio sul verde (volendo arredata)
Zona pranzo
Studio o quarta camera
Bagno ospiti
Zona notte
Camera padronale con cabina armadio attrezzata
Bagno en suite con vasca idromassaggio Jacuzzi e doccia
Due camere ragazzi
Secondo bagno con vasca/doccia
Ripostiglio
Piano seminterrato
Collegato internamente tramite ascensore alla zona living, comprende:
Locale lavanderia/stireria
Bagno di servizio
Locale caldaia
Ripostiglio
Intercapedine-cantina
Ampio box doppio (richiesta a parte € 35.000)

Caratteristiche e dotazioni : Palazzina di sole tre unità abitative
Tetto e caldaia autonoma nuovi
Porta blindata, doppi vetri, tapparelle elettriche
Aria condizionata, impianto d’allarme, fibra ottica

L’immobile gode di una posizione comoda ai servizi e ai mezzi pubblici, nelle immediate vicinanze della Scuola Francese di Torino.

💶 Richiesta: € 760.000 + Box doppio € 35.000.
🏡 Classe energetica: D

Non perdere questa rara opportunità: un appartamento immerso nel verde della primissima collina, a pochi passi dai servizi. Completamente ristrutturato, raffinato, con un’area esterna accogliente e pratici locali accessori — pronto per essere abitato subito!

📞 Per ulteriori informazioni o per prenotare una visita contattare la nostra referente :
Dott.ssa Bergadano – 347 1800345
Caratteristiche principali
Codice
V000932
Città
Torino
Categoria
Porzione Villa
Prezzo
760.000 €
Spese condominiali
1.000 € / anno
Locali
8
Camere
4
Bagni
3
Mq
230
Box
1
Mq Box
36
Posti auto
2
Mq Giardino
100
Balconi
2
Terrazzi
1
mq Terrazzo
65
Piano
Rialzato
Classe energetica
D
Stato Immobile
Ottimo
Grado
Signorile
Panorama
Vista Aperta
Orientamento
Nord Ovest Sud Est
Lati Liberi
4
Giardino
Privato
Arredi
Possibilità
Tipo Soggiorno
Soggiorno
Tipo Cucina
Abitabile
Riscaldamento
Autonomo
Tipo Riscaldam.
Caldaia
Tipo Impianto
Radiatori
Fonte Energetica
Metano
Acqua Calda
Autonoma
Raffrescamento
Split
Infissi
Legno Doppio Vetro
Serramenti
Ottimo
Persiana
Tapparella PVC
Pavim. Giorno
Parquet
Pavim. Notte
Parquet
Pavim. Cucina
Gres Porcellanato
Pavim. Bagno
Ceramica

Accessori: Antifurto, Aria Condizionata, Armadio a Muro, Ascensore, Camino, Cancello Elettrico, Doppi Vetri, Impianto Domotica, Impianto Satellitare, Lavanderia, Passaggio Automobilistico, Passaggio Pedonale, Porta Blindata, Rete Dati, Ripostiglio, Tapparelle Elettriche, Tavolini Esterni, Vasca Idromassaggio, Veranda, Video Citofono, Video Sorveglianza, Zanzariere

Mappa
Strada traforo di pino 39, Torino (TO)
Condividi su
Cookie preference