Casa indipendente sulla collina di Revigliasco
Italiano
English
Français
270.000 €

Casa indipendente sulla collina di Revigliasco

Casa singola in vendita • Moncalieri (Revigliasco) - Strada Maiole , 270
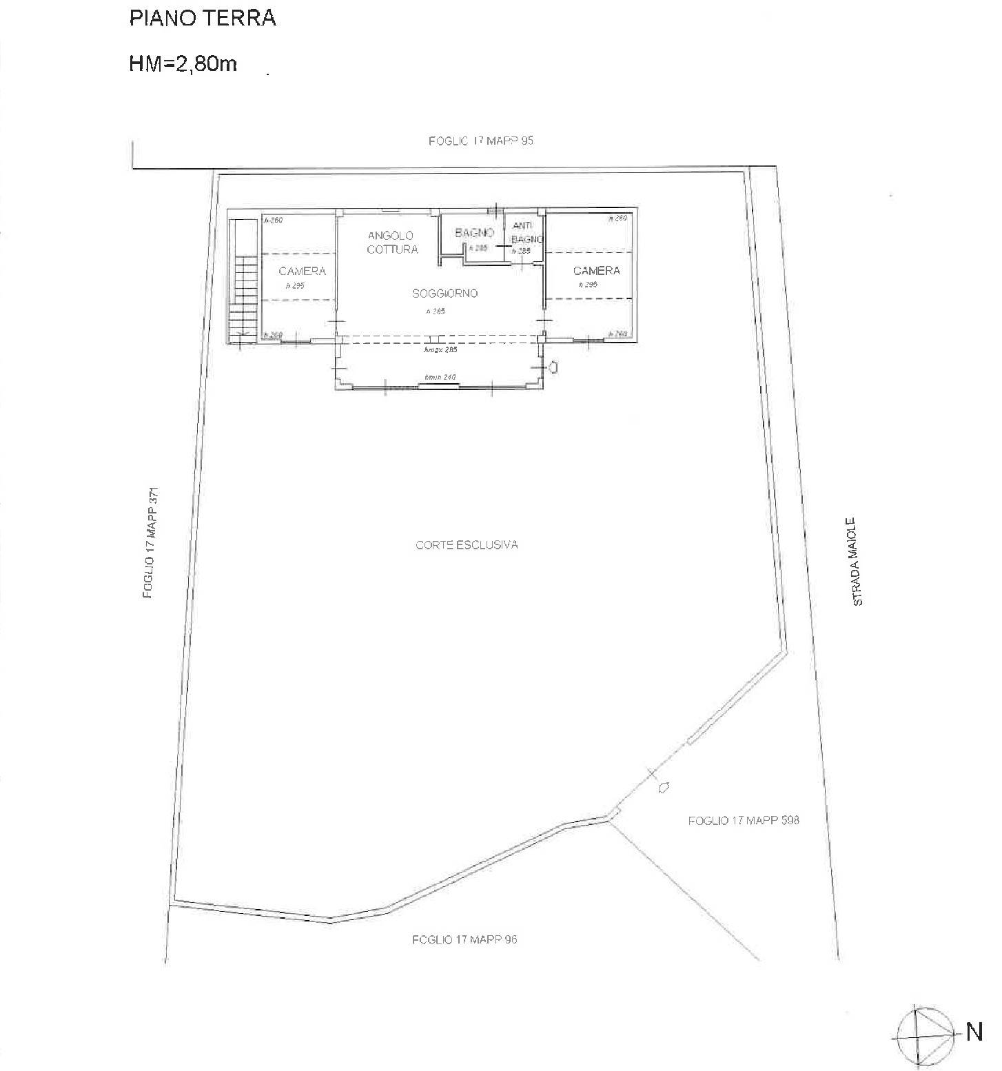
In posizione collinare, immersa nel verde e nella tranquillità, con vista panoramica, proponiamo una casa indipendente su quattro lati, completamente ristrutturata. La proprietà è circondata da un giardino privato e offre un’ampia area parcheggio, una zona barbecue e un gazebo parzialmente avvolto da una pianta di kiwi, che crea un angolo ombreggiato e suggestivo, ideale per momenti di relax all’aperto.

L’abitazione si sviluppa con ingresso su soggiorno con angolo cottura, una camera matrimoniale, una cameretta, un servizio finestrato e una cantina/taverna. Il riscaldamento è autonomo con caldaia e bombolone GPL, con un costo annuo di circa €800. Le spese per l’acqua ammontano a circa €580 all’anno. Prezzo richiesto: €270.000,00
Soluzione ideale per chi cerca tranquillità, natura e indipendenza a pochi minuti dalla città.
Caratteristiche principali
Codice
Maiole270
Città
Moncalieri (Revigliasco)
Categoria
Casa singola
Prezzo
270.000 €
Locali
3
Camere
2
Bagni
1
Mq
100
Posti auto
3
Piano
Terra
Classe energetica
E
Stato Immobile
Ristrutturato
Grado
Signorile
Posizione
Collina
Panorama
Vista Aperta
Orientamento
Nord Ovest Sud Est
Lati Liberi
4
Giardino
Privato
Arredi
Semi Arredato
Tipo Soggiorno
Soggiorno
Tipo Cucina
Angolo Cottura
Riscaldamento
Autonomo
Tipo Riscaldam.
Caldaia
Tipo Impianto
Radiatori
Fonte Energetica
GPL
Acqua Calda
Autonoma
Raffrescamento
Split
Infissi
Legno Doppio Vetro
Serramenti
Ottimo
Pavim. Bagno
Resina
Destinato a residenti
Si

Accessori: Aria Condizionata, Doppi Vetri, Rete Dati, Tavolini Esterni

Mappa
Strada Maiole 270, Moncalieri (TO)
Video
Condividi su
Cookie preference